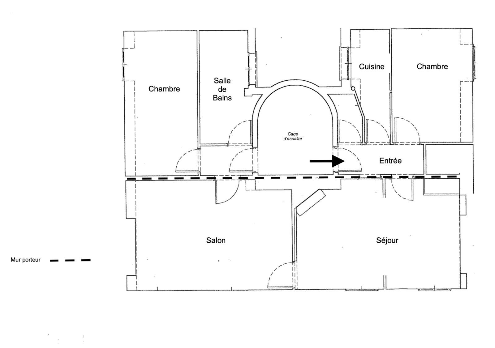
L’Agence Le Réseau, une commission fixe de 8 500 euros, vous propose à la vente ce bien lumineux de 77m² (74m² Carrez) au 5ème et dernier étage sans ascenseur situé Villa de Grenelle. Le bien se trouve à 300m du métro Dupleix Ligne 6, et à 450m du Métro Motte Picquet Grenelle Lignes 6, 8, et 10.
Idéalement situé dans une villa piétonne il est à proximité immédiate des commerces, transports et écoles
L’appartement, au calme absolu et bénéficiant d’une triple exposition, se compose d’une entrée, d’un double séjour, d’une salle de bains avec WC (possibilité installation WC indépendant supplémentaire), d’une cuisine indépendante (possibilité cuisine ouverte), de deux chambres (possibilité troisième chambre).
Cet appartement de 4 pièces est la réunion de deux appartements, offrant la possibilité de re-séparer l’ensemble en deux lots.
Deux caves sont comprises dans la vente.
Une rénovation générale est à prévoir.
Les charges, de 170 euros par mois, incluent l’eau froide et l’entretien des parties communes. L’eau chaude et le chauffage sont individuels, électriques et au gaz.
La taxe foncière est de 1 207 euros.
