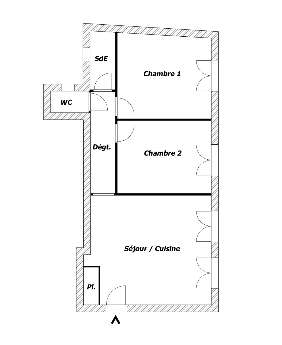
Saint Paul - Le Marais - L' Agence Le Réseau avec une commission fixe de 8 500€ vous propose à la vente ce trois pièces de 57m² (56,5m² Carrez) au premier étage sur cour arborée situé rue Charlemagne, à 50m du métro Saint Paul ligne 1 et 250m du Métro Pont Marie ligne 7.
Ce bien calme et en parfait état, se situe au premier étage avec ascenseur d'une copropriété bien entretenue. Il se compose d'un séjour avec cuisine ouverte, de deux chambres (14m² et 12m²) d'une salle d'eau et d'un WC séparé. Les pièces donnent sur une cour arborée garantissant un calme absolu.
L'appartement sans aucune perte de place a fait l'objet d'une rénovation récente. Il bénéficie de parquet massif, de moulures et de double vitrage. Une cave est comprise dans cette vente.
Les charges, de 150 euros par mois comprennent l'eau froide, l'entretien des parties communes, l'ascenseur et les services d'un gardien. L'eau chaude et le chauffage sont individuels au gaz et électrique.
La taxe foncière est de 960 euros.
