L' Agence Le Réseau avec une commission fixe de 8 500€ vous propose ce 2 pièces de 44m2 au calme avec sa terrasse de 27m2 avec possibilité d'exercer une profession libérale au sein d’une résidence grand standing de 2023 bénéficiant de la garantie décénale avec parking en supplément situé rue du Parc à proximité des commerces et du métro Pont de Levallois à 200m.
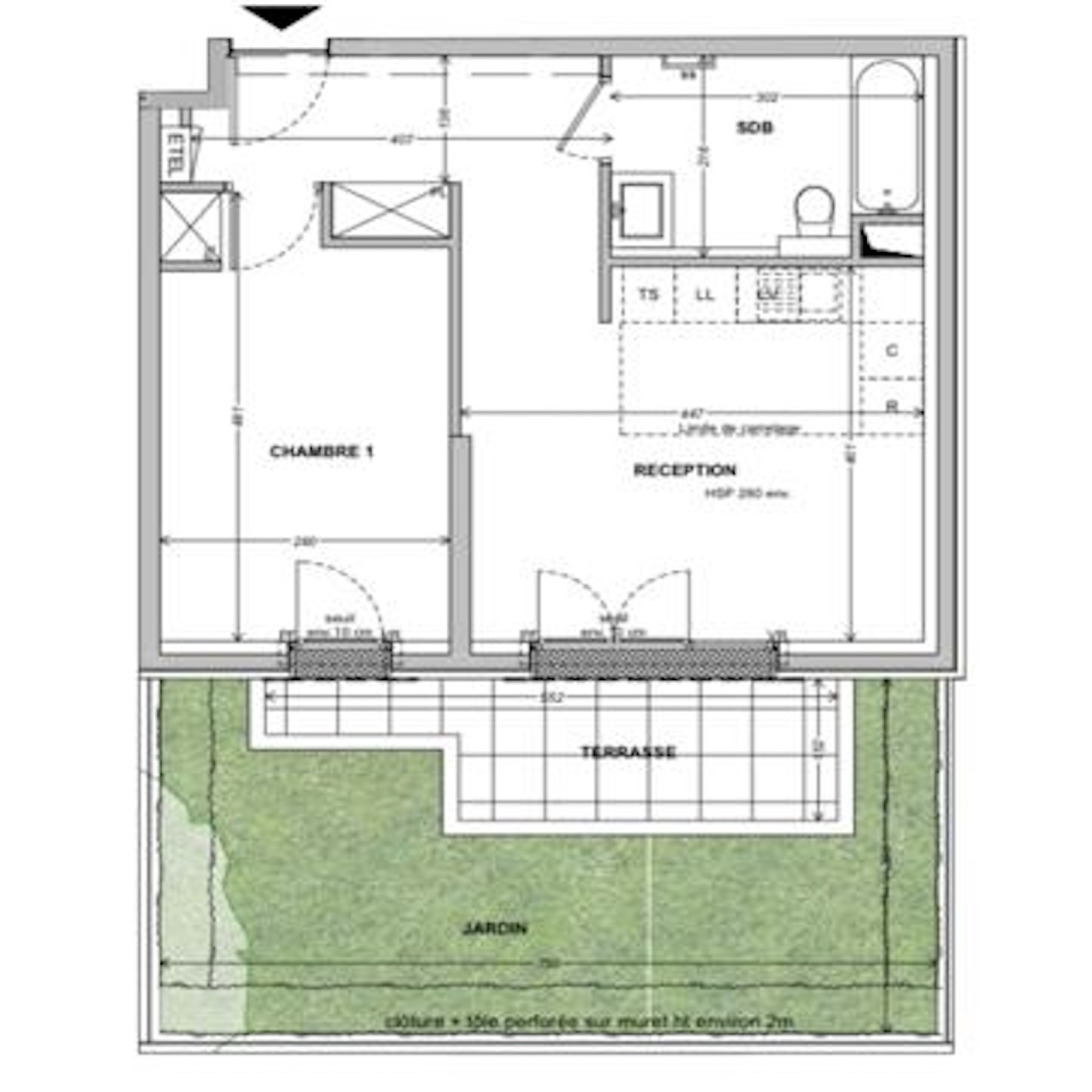
Ce bien en parfait état au calme, est au rez-de-jardin et se compose, d’une entrée avec rangements, d’un séjour avec sa belle cuisine américaine aménagée et équipée, le tout faisant une superficie de 25m2 donnant sur la terrasse d'une surface de 27m2 exposé sud-ouest, d'une chambre de 13m2 avec rangements donnant également sur la terrasse et d'une salle de bains avec WC.
De conception moderne, le bien a bénéficié d'une rénovation complète. L’appartement est par ailleurs équipé de fenêtres en double-vitrages avec stores électriques, d'une belle hauteur sous plafond de 2.80m, ainsi que de nombreux rangements sur mesure.
Possibilité d'exercer une profession libérale.
Au sous-sol de la résidence, Une grande place de parking est proposée en supplément.
Le DPE est en C.
La résidence profite notamment d’une bonne isolation phonique, d’accès contrôlés par digicode et interphone. Les charges sont de 150 euros par mois et incluent notamment le chauffage, l’eau chaude et froide, l’entretien des parties communes et l’ascenseur.
Le prix de vente est de 490 000€ incluant 8 500€ d'honoraires d'agence soit 481 500€ hors honoraires d'agence soit 1.70% à la charge de l'acquéreur.
