L' Agence Le Réseau vous propose cet appartement au dernier étage, de 112m2 avec terrasse et balcons au sein d’une résidence standing avec cave et 2 parkings en supplément, au pied des commerces, des écoles, et à 500m du métro Anatole France.
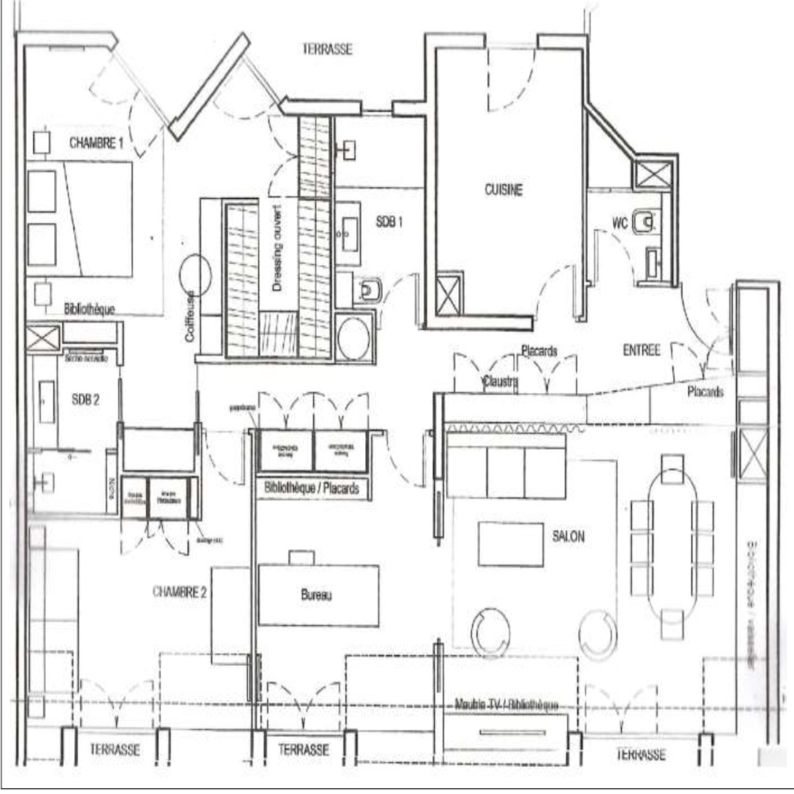
Ce bien en parfait état rénové par architecte, au 6ème et dernier étage avec ascenseur se compose, d’une entrée avec rangements, d’un séjour traversant de 35m2 donnant sur le balcon , d'une cuisine séparée et équipée donnant sur la terrasse au calme de 25m2, de 2 chambres avec rangements sur mesure de 12m2 et 13m2 et une suite parentale au calme de 20m2 donnant également sur la terrasse, avec sa salle d'eau et douche à l'italienne, d'un dressing, d’une salle de bains avec WC, et d’un WC indépendant.
De conception moderne, l'appartement a bénéficié d'une rénovation complète par architecte : (parquet massif, climatisation, meubles sur mesure, peintures, etc..). L’appartement est par ailleurs équipé de fenêtres en double-vitrages avec stores électriques, ainsi que de nombreux rangements.
Au sous-sol de la résidence, 2 places de stationnements côte à côte sont propsées en supplément au prix de 50 000€. Une cave saine est incluse dans le prix de vente.
Le DPE est en C.
L’immeuble récent et en bon état profite notamment d’une bonne isolation phonique, d’accès contrôlés par digicode et interphone. Les charges sont de 320 euros par mois et incluent notamment l'ascenseur et l’eau froide, le chauffage et l'eau chaude sont individuelles et électriques. La taxe foncière est de 2400 euros.
Le prix de vente est 1 390 000€ incluant 27 800€ d'honoraires d’agence (soit 1 362 200€ hors honoraires d'agence et 2% d'honoraires à la charge de l'acquéreur).
