Quartier Mairie – L' Agence Le Réseau vous propose cet appartement familial de 87m2 avec sa terrasse de 45m2 au calme sur jardin au sein d’une résidence grand standing de 2004 avec cave parking en supplément situé en plein centre ville au pied des commerces, des écoles, et de la gare de Puteaux à 400m.
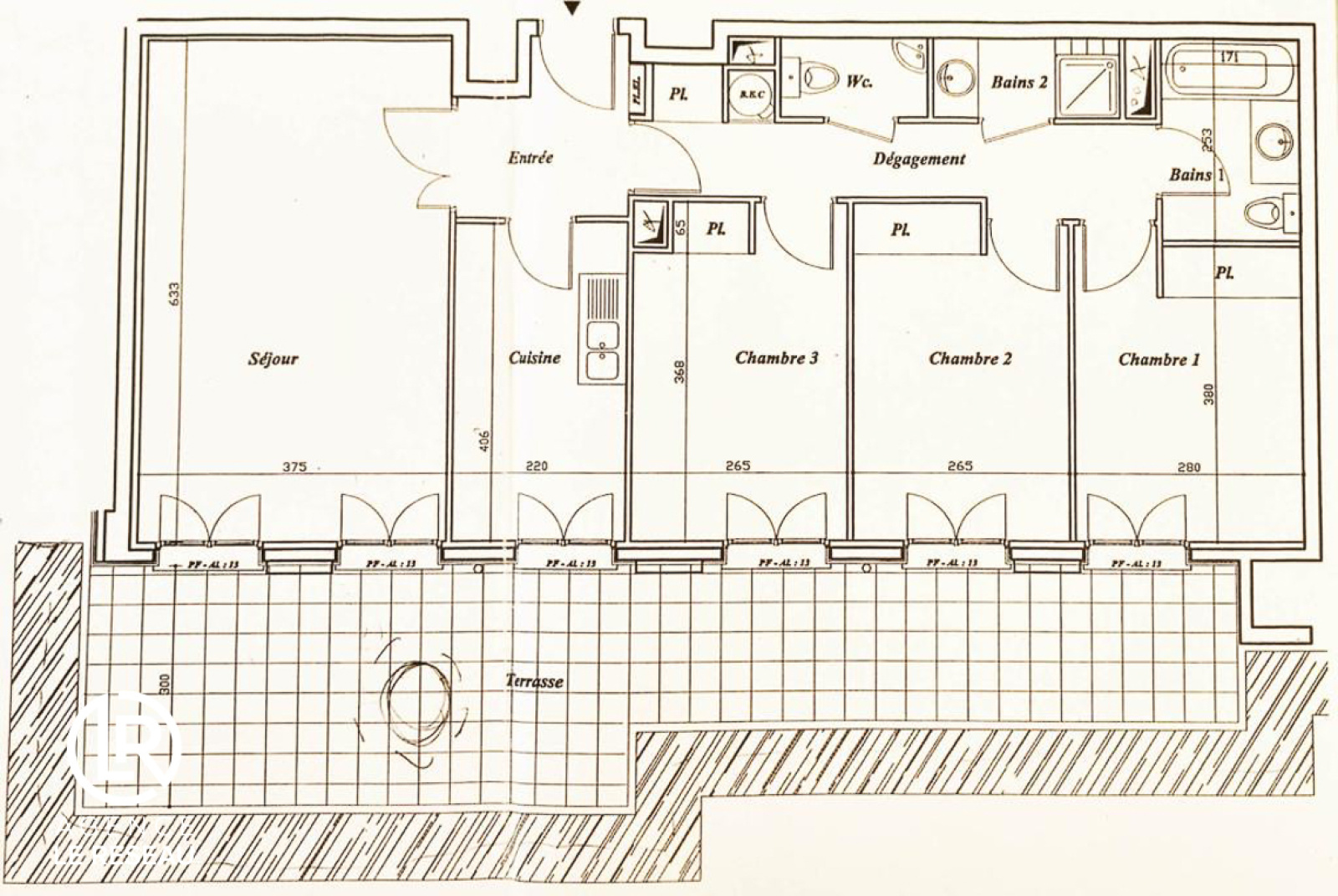
Ce bien en parfait état au calme, est au rez-de-jardin et se compose, d’une entrée avec rangements, d’un séjour avec sa cuisine américaine aménagée et équipée, le tout faisant une superficie de 38m2 donnant sur la terrasse paysager au calme sur jardin de 45m2 exposé plein sud, de 3 chambres de 11m2 avec rangements donnant également sur la terrasse, d'une salle d'eau, d'une salle de bains et d'un WC séparé.
De conception moderne, le bien a bénéficié d'une rénovation complète : (parquet massif, meubles sur mesure, peintures, etc..). L’appartement est par ailleurs équipé de fenêtres en double-vitrages avec stores électriques, d'une belle hauteur sous plafond de 2.80m ainsi que de nombreux rangements sur mesure.
Au sous-sol de la résidence, Une place de parking est proposée en supplément au prix de 20 000€. Une cave saine est incluse dans le prix de vente.
La résidence profite notamment d’une bonne isolation phonique, d’accès contrôlés par digicode et interphone. Les charges sont de 200 euros par mois et incluent notamment l’eau froide, l’entretien et l’ascenseur ainsi que le régisseur. Le chauffage et l'eau chaude sont individuels et électriques La taxe foncière est de 1150 euros.
Le prix de vente est de 850 000€ incluant 7 500€ d'honoraires d'agence soit 842 500€ hors honoraires d'agence soit 1.70% à la charge de l'acquéreur.
