L'Agence le Réseau, vous propose à la vente cette sublime Maison individuelle de 185m2 avec terrasse et son jardin, édifiée sur une parcelle de 277m2, idéalement située au calme dans le quartier résidentiel et recherché Hoche, et à 500m de la gare de Colombes et à proximité de tous les commerces et écoles sectorisées Hoche.
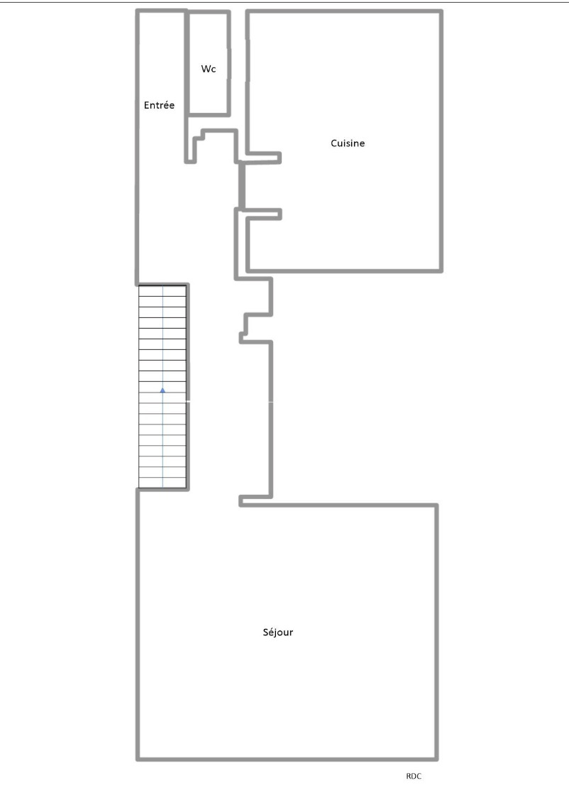
Cette Sublime Maison individuelle lumineuse de 2008 est en parfait état et se compose, au rez de chaussée surélevé :
d’une entrée avec rangements sur mesure menant à un vaste séjour traversant sans vis-à-vis de 44m2 prolongé par une terrasse et le jardin, d'une cuisine dinatoire entièrement aménagée et équipée ainsi qu'un WC indépendant complète ce niveau.
A l'étage dotées de rangements intégrés, vous trouverez 3 chambres au calme et sans vis-à-vis de 11m2 ,13m2 et 16m2 avec rangements, d'une salle de bains avec douche à l'italienne et un second WC séparé viennent enrichir cet espace nuit.
Le dernier étage accueille une sublime suite parentale de 28m2 bénéficiant d'une belle hauteur sous plafond, d'une salle de bains avec douche à l'italienne, d' un 3ème WC séparé, ainsi q'une terrasse sans-vis-à-vis de 30m2.
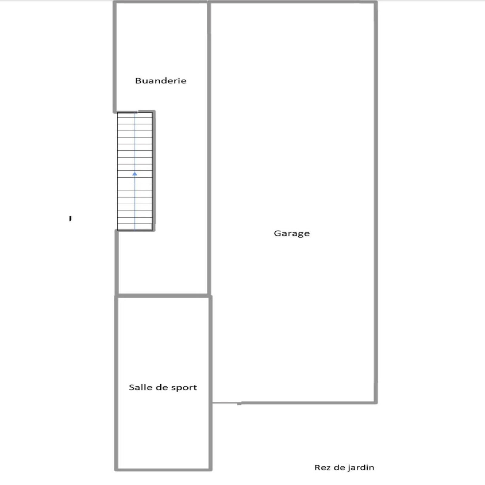
Le rez-de-jardin comprend une buanderie équipée, d'une pompe à chaleur, d'une salle de sport. Un grand garage est disponible également (possibilité de stationner 3 voituresentre le parking avant et le garage).
La Maison est très bien isolée avec un DPE en C.
De conception moderne, La maison offre un excellent confort thermique avec un DPE en C, et bénéficie également de parquet massif, de nombreux rangements sur mesure et de fenêtres en double vitrage.
