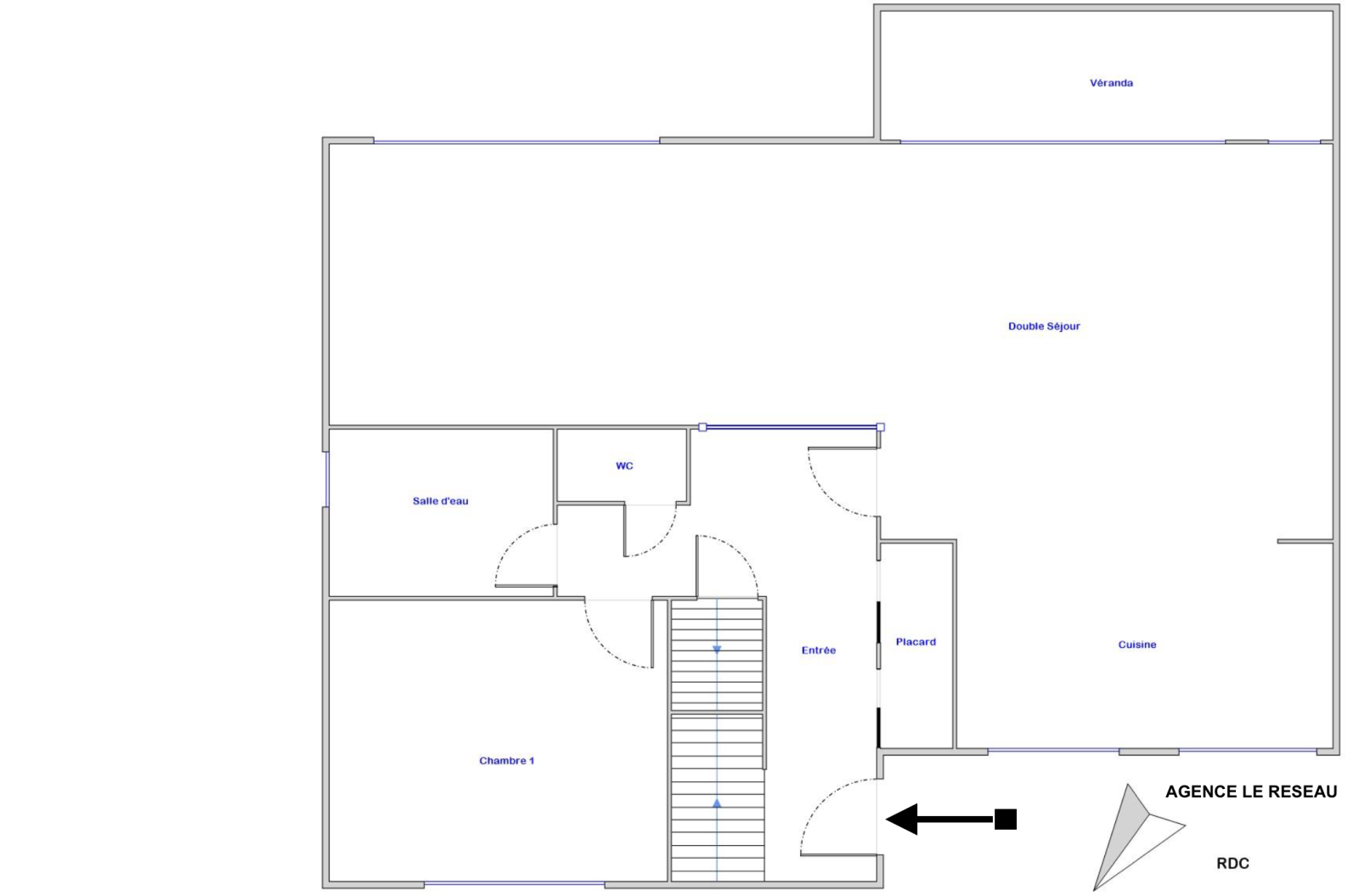
L’Agence Le Réseau, une commission fixe de 8 500€ vous propose à la vente cette maison individuelle de 160m2 située rue de Chanconnet. Cette maison lumineuse, non mitoyenne et traversante sur deux niveaux se compose: Au premier niveau: d'un vaste double séjour avec cheminée fonctionelle donnant sur une grande terrasse, d'un espace jaccuzzi sous véranda, d'une chambre, d'une salle d'eau, d'un WC séparé, et d'une cuisine ouverte équipée. Au second niveau: de trois chambres, d'une salle de bains, d'un WC séparé, et d'une seconde terrasse. En sous-sol: d'un garage, un espace buanderie, atelier. Jardin de 835m2. Le bien calme et lumineux comporte de nombreux rangements, DPE D. La taxe foncière est de 3 450 euros.
Maison 6 pièce(s) 4 chambre(s) 160 m²
Bilan énergétique
Diagnostics énergetiques- Surface 160 m²
- carrez 160 m²
- terrain 945 m²
- 4 chambre(s)
- 1 salle(s) de bain
- 1 salle(s) d'eau
- cuisine américaine
- Chauffage individuel : chaudière (gaz)
- 1 garage(s)
- 2 niveau(x)
- terrasse
