L’Agence Le Réseau, une commission fixe de 8 500€, vous propose à la vente cette maison individuelle familiale de 89,5 m² avec un jardin de 120 m², située impasse de la Grenouillère.
Cette maison lumineuse, calme et traversante se compose :
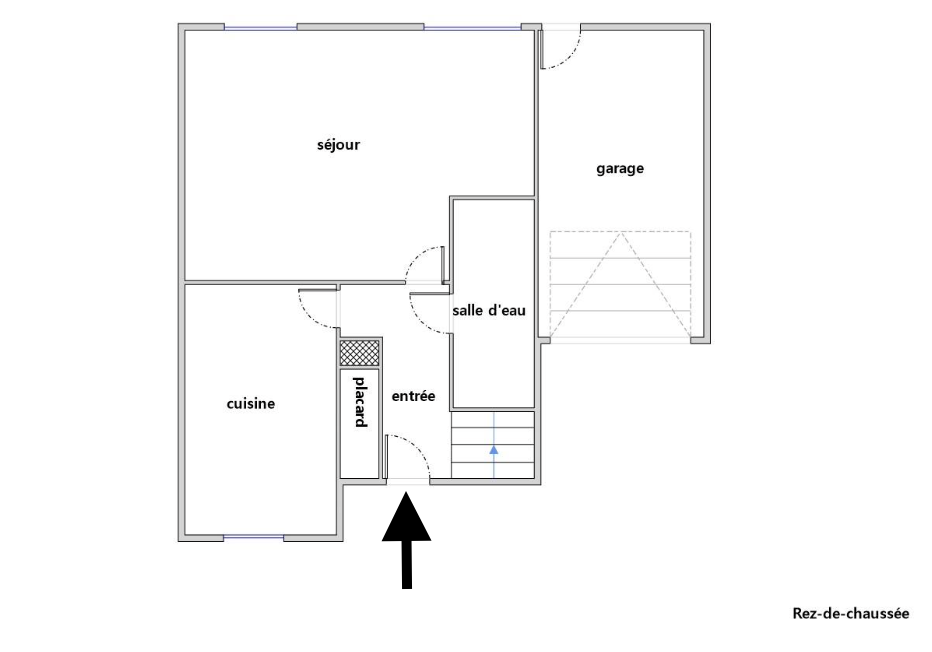
Au premier niveau : d'une entrée, d'un séjour donnant sur l'extérieur, d'une salle d'eau avec WC.
Au second niveau : de 4 chambres, d'une salle d'eau et d'un WC séparé.
Un jardin de 120 m² vient compléter l'ensemble, ainsi qu'un garage.
Le chauffage et l'eau chaude sont fournis par une chaudière à gaz.
